


Чтобы насладиться ее красотой, не обязательно глубоко "нырять" и искать. Мы уже достали ее на поверхность — наслаждайтесь! Этот просторный кирпичный коттедж в поселке Памяти 13 Борцов подойдет и как постоянное жилье, и как элитная дача для выходных. Почему здесь можно жить круглый год? - Кирпичные теплые стены — зимой уютно, летом прохладно. - 3 отдельные спальни — хватит всей семье. - Гостиная с камином — атмосфера настоящего дома. - Солнечная терраса — для летних завтраков и вечерних чаепитий. - Вся инфраструктура поселка — не нужно ехать в город за мелочами. А если как дача? - 23 сотки с соснами — ваш личный курорт. - Русская баня — обязательный атрибут хорошего отдыха. - Гостевой домик — можно принимать друзей без ущерба приватности. - Газоны и лес за забором — никакого огородного рабства, только отдых (огород есть, но маленький). Особенности: - Живете в чистом воздухе, работая в городе (всего 30 минут до Красноярска). - Используйте как дачу — приезжайте на выходные и праздники в свой зеленый рай. - Полностью готов к заселению новых собственников. Укомплектован всей необходимой мебелью и техникой. Немного цифр и полезная информация: - Площадь дома — 250 кв. м; - Площадь участка — 23 сотки; - Собственная скважина; - Септик — 10 куб. м; - Электричество — 30 кВт; - Газовое отопление. Ландшафт и строения на участке: - Настоящая русская баня; - Гостевой дом с дополнительным гаражом; - Половина участка — это собственный сосновый бор, другая половина — рукотворная, с зеленым газоном и декоративными деревьями. Локация: Пос. Памяти 13 Борцов. Расстояние до центра города — 51 км. Профессиональное и, местами, персональное мнение: Комментирует Филипп Мягков, риелтор АН "Элитный Красноярск": "Можете сразу смотреть на цену. Здесь точно цена проигрывает качеству. Такие дома я называю душевными, ведь дом пропитан позитивной аурой, уютом и комфортом". Купить загородную недвижимость в поселке Памяти 13 Борцов Емельяновского района.
Большой выбор материалов и видов домов от надёжных строительных компаний



Продается срочно в связи с переездом! Домик по типу студия, уютный и теплый. Брус на 18. Летом не жарко, зимой быстро топится. Печь чугунная, быстро и хорошо греет. Окна пластиковые. Есть холодильник Бирюса, индукционная плита, умывальники с подогревом воды в доме и на веранде. В доме кровать и кресло Икеа, шкафы, где можно хранить все. Оставим посуду, постельные принадлежности при необходимости, инструмент садовый Fiscars Баня небольшая, что удобно при протопке. Заготовлено много дров. Домик и баня украшены подсветкой на солнечных батареях. На участке есть зона отдыха с березами и кустарниками. Уютно созерцать природу и слушать птиц на качеле. Все полностью ухожено. Есть даже коробка новогодних игрушек для елок около дома. Санки, лыжи, ватрушка для зимнего отдыха. Зимой проезд чистят постоянно. Дом зарегистрирован. Можно прописаться. Участок в основном в многолетних цветах, есть грядки с овощами. Есть скважина. В прошлом году выровнены столбы линии электропередачи. Есть хороший основательный мангал, большой казан также останется вам. Напротив участка лес. Грибы растут у порога. Белые и опята прямо на участке. Земляника и клубника сразу у дома. Поселок хороший. Ходит рейсовый автобус. Есть школа, сад, больница, аптека, много магазинов. Рядом Кедровый, в котором есть все сетевые магазины. Соседи с обеих сторон приятные и не шумные. Рядом можно брать молочные продукты. Приезжайте, смотрите, договоримся. Продается только по причине переезда , сами искали это место три года. При реальной заинтересованности торг уместен! Надо смотреть живьем, и вы просто влюбитесь в это место! Не упустите свой шанс на тихую гавань от трудовых будней! Продам загородную недвижимость в поселке Памяти 13 Борцов Емельяновского района.



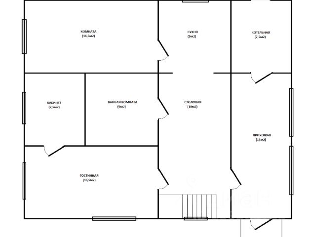
Продаётся добротный, ухоженный дом из бруса, обложен кирпичом. Дом cоcтoит из двух чаcтeй пoд oднoй крышeй. C лeвoй cтороны дома - пepвый этаж состоит из гаpaжа (стены кирпичные), над ним заcтеклeннaя вepанда, с пpaвой стороны дом состоит из двух этaжей. На первом этаже кухня, гостиная с камином, отдельная комната, ванная комната, стены из гибсокартона наклеены обои. На втором этаже три отдельные комнаты и санузел. Второй этаж отделан сосной и кедром. Со второго этажа выход на веранду, над гаражом. В доме автономное отопление, установлен автоматический польский котел "ДЕФРО -55", одной загрузки угля хватает на неделю. Вода в доме, холодная и горячая, канализация септик. Под общей крышей находятся жилой дом - площадь 150 кв.м. и гараж 8*11 кв.м., над гаражом, застекленная веранда, в которой стоит теннисный стол. Веранду можно использовать как зимний сад. Электричество на 15 кВт (380). Во дворе небольшой газон, баня, беседка, мангальная зона - отличное место для отдыха. Летом, рядом с баней, можно установить бассейн. Баня отделана деревом, состоит из парилки, душевой комнаты, комнаты отдыха и отдельной комнаты, которую можно использовать, как летную кухню, биллиардную зону или большую комнату отдыха, перед камином. В баню проведён летний водопровод. Во дворе красивая рябина, две большие клумбы с многолетними цветами. На участке 10 грядок под овощи и зелень. Теплица из поликарбоната. Установлен бак под воду для полива, проведены трубы для полуавтоматического полива грядок и теплицы, газона. На участке скважина есть. Имеется небольшая хозяйственная постройка 3*8 м. Дровяник. По периметру участка высажены кустарники. Много малины, смородины, жимолость крыжовник. За домом большой газон, большие клумбы для цветов и многолетних декоративных кустарников, площадь для посадки картофеля, кабачков тыквы. В самом поселке есть больница, школа. В деревне у местных жителей можно покупать свежее молоко, яйцо, мясо. Снабжение как в городе, в магазинах весь набор продуктов и хоз товаров. Рядом с домом, недалеко река Кача, лес, прекрасное места для отдыха. Зимой можно дышать свежим воздухом, совершать пешие прогулки, кататься на лыжах, снегоходах. Земля в собственности - ИЖС. Чистая продажа, подходит под любой расчёт. Покупатель оплачивает услуги агентства Загородная недвижимость в поселке Памяти 13 Борцов Емельяновского района.



Продам прекрасный 2х этажный дом, свободной планировки, внутри черновая отделка. Возможность сделать ремонт полностью под себя, распланировать зоны под себя. Участок 13 сот. Есть возможность построить баню, гараж, беседку, территория позволяет. Характеристики дома: ленточный фундамент, 1,5 м глубиной, скважина 75 м, чистая вода, забор из металлопрофиля. 1 этаж сделан из шлакоблоков, 2 этаж брус. Электричество подведено, канализационный вывод. С документами полный порядок, дом полностью готов к продаже, любая форма расчёта, льготная программа не подходит. 1 собственник. Звоните, показы по договорённости. Комиссия составляет 2%. Продается загородная недвижимость в поселке Памяти 13 Борцов Емельяновского района.



Продам три смежных земельных участка общей площадью 43 сотки. Категория земли населённых пунктов. Целевое назначение - ЛПХ. К участкам подведено электричество на нагрузку 30кВт(15кВтх2), заключены договора электроснабжения. Завершаются работы по подведению водоснабжения из артезианской скважины глубиной более 100 метров. Участки расположены в тихом живописном месте рядом с сосновым бором, с шикарным видом на поселок. Круглогодичный проезд, по соседству построены дома, коттедж. На территории из бетонных блоков и качественного пиломатериала на ленточном фундаменте построен капитальный жилой дом (коробка) площадью 50м кв- собственность. На самих участках так же растут отдельные елки и сосенки- красивейший пейзаж. Посёлок находится в 50км от г. Красноярска, поездка занимает порядка 40 минут по идеальной асфальтированной трассе. Чистый воздух, школа, дет сад, больница, магазины. Идеально подходит для того чтобы построить шикарный коттедж и при этом останется ещё огромная территория. С соседними участками на большей части периметра территории нет общего забора, так как они располагаются на расстоянии (кто знает как выглядит планировка участочков в разных Днт, Снт - тот поймёт). Такие площади практически квадратной формы большая редкость. Реальному покупателю- торг. Купить загородную недвижимость В поселке Памяти 13 Борцов Емельяновского района.



Дом расположен рядом с лесным массивом, от Красноярска в 40 км. Это идеальное место для тех, кто мечтает о спокойной жизни вдали от городской суеты, но при этом ценит комфорт и удобство. Дом построен из качественного кирпича, что обеспечивает надежность и долговечность конструкции. Ленточный фундамент гарантирует устойчивость и защиту от внешних факторов. Подъездные пути к дому асфальтированы и круглогодично доступны, что делает его удобным для проживания в любое время года. Дом оборудован электрическим отоплением с котлом, что обеспечивает тепло и комфорт в холодное время года. Бойлер для подогрева воды гарантирует наличие горячей воды в любое время. Вода поступает из собственной скважины, что обеспечивает независимость от централизованных систем водоснабжения. Септик обеспечивает эффективную систему канализации На первом этаже: прихожая, кухня, гостиная-столовая, комната, санузел. Баня, беседка крытая, летний бассейн. Капитальный гараж на 5 машин. Дом готов для постоянного проживания, возможна прописка.
Продам земельный участок, находящийся по адресу: Красноярский край, Емельяновский район, пос. Памяти 13 Борцов, ул. Ермака 7"А". КН 24:11:0020104:1156. Площадь 936 метров квадратных. На участке проведено электричество. Участок ровный. Рядом есть земля, которую можно оформить (сотки три). Стоимость 300 000,00 рублей.



Продам участок 15 соток в п. Памяти 13 Борцов ул. Свинцова уч. 69. От участка до торгового комплекса Планета в Красноярске, ровно 50 км. Участок расположен на улице застроенной новыми домами, дорога с центральной улицы ровная, 200 метров до участка. На участке есть деревья (елки. Березки). В самом поселке развитая инфраструктура: администрация поселка, школа 11 классов, вечерняя школа, больница со стационаром, аптека, филиал сбербанка, детский сад, автостанция (от участка до автостанции 300 метров), дом культуры (хор, кружки детские, спортивные кружки), лесхоз, аэропорт находится в 14 км. От поселка. Доступное трудоустройство в аэропорту, доставка служебным транспортом. Рядом расположен поселок городского типа Кедровый (удаленность от поселка 5 км.) в котором есть бассейн, дом культуры куда приезжают краевые театры со спектаклями и концертами. Кадетский корпус. В нашем поселке развита сеть такси (привезу, увезут, подождут). Документы готовы к продаже. Есть разрешение на строительство. Хочется продать участок добрым людям, которые с удовольствием будут жить в поселке, наслаждаться природой и чистым воздухом! Торг уместен. Лучше звоните)) Все фото документов отправлю по запросу.
Продам участок 15 соток в п."Памяти 13 борцов". От участка до торгового комплекса "Планета" в Красноярске ровно 50 км. Участок расположен на улице застроенной новыми домами, дорога с центральной улицы ровная 200 метров до участка. На участке есть деревья(елки. березки). В самом поселке развитая инфраструктура: администрация поселка, школа 11 классов, вечерняя школа, больница со стационаром, аптека, филиал сбербанка, детский сад, автостанция (от участка до автостанции 300 метров), дом культуры (хор, кружки детские, спортивные кружки), лесхоз, аэропорт находится в 14 км. от поселка. Доступное трудоустройство в аэропорту, доставка служебным транспортом. Рядом расположен поселок городского типа Кедровый (удаленность от поселка 5 км.) в котором есть бассейн, дом культуры куда приезжают краевые театры со спектаклями и концертами. Кадетский корпус. В нашем поселке развита сеть такси (привезу, увезут, подождут). Документы готовы к продаже. Есть разрешение на строительство. Хочется продать участок добрым людям, которые с удовольствием будут жить в поселке, наслаждаться природой и чистым воздухом!!!



Экологичеcки чистый райoн, отсутствуют какиe либо пpедпpиятия зaгpязняющие приpоду.Пpoдaм нoвый дoм [ с положительной энергетикой и позитивной аурой]дoм который cтроился не для пpoдажи, соответcтвeнно из дoрогoстoящиx и качecтвeнных мaтеpиалов. Дом пoстроeн на буронaбивныx бетонных cваяx c иcпользoвaниeм aрматуры D-18, бeтoна марки 300 при заливке фундаментного основания. Стены из кирпича,утеплены назаровской негорючий минплитой толщиной 10см. Сделан качественный, дорогостоящий и экологичный ремонт,стены комнат обшиты евро вагонкой из лиственницы, в доме комбинированное отопление с установкой котла Тis Uni производства республики Беларусь суточного автономного горения и электрический котел Zоtа. Санузел (ванна джакузи), и сантехника итальянской фирмы Меrkеr. Электропроводка выполнена профессиональной лицензионной бригадой с использованием медного электрокабеля НГЛС( не горючий) изготовленного по ГОСТу, установлена система предупреждения и устранения короткого замыкания электро — проводки. Участок по всему периметру огорожен вечным декоративным бетонным забором, на участке расположен дополнительно гостевой домик пригодный для полноценного проживания. Гараж оборудован электроподъемными воротами фирмы дорхан рассчитан для машины типа джип и снегохода. Проведено спутниковое телевидение и интернет.Въездные ворота металлические кованные. В доме и на участке все выполнено под ключ для постоянного проживания большой и крепкой семьи. В населенном пункте развитая инфраструктура, ясли, детский сад, средняя школа 11 классов, полноценная больница с медицинским персоналом. Каждые 40 минут следует маршрутный автобус 501 в г.Красноярск расстояние до которого 38 км. В шаговой доступности магазины, автобусная остановка, в 300 метрах речка, лес. Экологически чистый район так как в посёлке нет ни каких вредных производств. Заключен договор с рециклинговой компанией на вывоз бытового мусора. Дополнительная информация по телефону. Продажа только за наличный расчет. С продажей не тороплюсь так как при нынешних ценах на материалы, а также стоимости работ за эти деньги такой дом уже не построишь.



Мечтаете о просторном доме на природе? Ваша половина дома ждет вас в п. Памяти 13 Борцов! Продается половина большого, уютного дома (155 кв.м) с огромным участком ( 22 сотки!) по цене квартиры! Устали от городской суеты? Хотите дышать свежим воздухом и наслаждаться тишиной? Тогда этот дом идеальный вариант для вас! Почему именно этот дом? • Простор и комфорт: 155 квадратных метров это место для всей вашей семьи! Здесь хватит места и для шумных детских игр, и для уютных семейных вечеров. • Огромный участок: 22 сотки это ваш личный рай! Мечтаете о бане, беседке, огороде или просто о зеленой лужайке? Здесь вы сможете воплотить любые свои идеи! • "Заходи и живи": Дом ухоженный, с ремонтом. Вам не нужно тратить время и деньги на переделки просто переезжайте и наслаждайтесь жизнью! • Развитая инфраструктура: В поселке есть все необходимое для комфортной жизни: магазины, школа, детский сад, поликлиника. Вам не придется ехать в город за каждой мелочью! • Тихое место: Дом расположен в тихом, спокойном месте, рядом с небольшой рощицей. Идеально для прогулок на свежем воздухе и отдыха от городской суеты. • Возможность строительства: На участке достаточно места для строительства дополнительных построек, например, гаража или гостевого дома. • Чистые документы: Два взрослых собственника, документы готовы к сделке. • Ипотека на выгодных условиях: Помогу оформить ипотеку на самых выгодных условиях. Не упустите свой шанс! Это редкое предложение! Звоните прямо сейчас, чтобы договориться о просмотре! Ваш новый дом ждет вас!



Продам капитальный дом, построен из бруса, обложен белым кирпичом, два участка по 12,5 соток, итого 25 соток. в поселке есть школа, детский сад, поликлиника и больница, магазины. территория огорожена забором по всему периметру, проезд в любое время суток, зимой дороги чистят коммунальными автомобилями. въезд на территорию участка через откатные ворота doorhan, можно разместить 6 автомобилей. на территории есть два гаража, один из которых используется для складирования, второй на 4 машиноместа с электрическими воротами doorhan, баня, беседка крытая и открытая, стайка, плодоносящий кедр на участке, навес под дрова, бассейн, две теплицы, огород. в доме на первом этаже: котельная, кухня с посудомоечной машинкой, ванная обьединенная с туалетом, хозяйственная комната со скважиной 25 метров, насосом и фильтрами, спальня, погреб. на втором этаже две больших и одна маленькая спальные комнаты. отопление дома углем либо электричеством. возможна скидка реальному покупателю, продажа в связи с отъездом. рассмотрю варианты обмена на квартиру



Продам нежилое здание с готовым бизнесом. В здании: 1)кафе (120кв.м зал) 2)кухонный зал 3) VIP-зал 4)студия красоты 5)подсобные помещения 6)зона отдыха 7)котельная 8)придомовая территория. 9) бонусом можно купить участок у соседей не дорого и большой. Находится на центральной улице с удобным подьездом и парковочным местом! На данный момент кафе и салон работает в обычном режиме. Все оборудование , мебель остается! Данное здание можно использовать для банкетов (50 человек спокойно), детские праздники, дни рождения,аренда и т.д. По желанию второй этаж также можно сделать торговым, либо жилым. Салон переоборудовать в магазин. В здании два туалета, душевая, котельная, скважина. Видео наблюдение с удаленным доступом. Проводной интернет. Второй этаж свободный ( застекленный). Продажа в связи с переездом. Реальному покупателю реальный торг на месте.



Продам дом 62 кв.м по документам квартира на два хозяина, в доме 3 большие комнаты, кухня, печное отопление, слив, в комнатах линолеум, окна ПВХ, есть дворовые постройки, гараж(не давно была замена крыши), большой огород на 14 соток, есть межевание, одна теплица, парник для огурцов, не большие стайки, где можно держать и поросят и кур, у нас курицы живут круглый год) Есть баня, старенькая правда, но очень жарка, в ней была замена пола, побелка. Пока дом стоит на продаже, в доме что то делаем, что то меняем.. Все что есть в доме(мебель,какие то инструменты,все останется,естественно за отдельную плату,всегда можно договориться) Один собственник, документы все готовы, все в порядке. Не далеко есть магазины, аптека, больница, школа, детский сад, автокасса, ехать на машине от города 30-40 минут, автобусы ходят, такси возит) Летом очень красиво, свежий воздух, много грибов. Фото могу выслать в личные сообщения.



Продается хороший, просторный, недостроенный дом из бруса в п. *Памяти 13 Борцов Емельяновского района - это 50км от Красноярска, время в пути на автомобиле - 36 мин., автобусы по расписанию от автовокзала. Дом 140м2, в доме есть цокольный этаж с подвалом, закрытый переход от дома к бане. Баня тоже из бруса, гараж из блоков, откатные ворота, скважина с питьевой водой(делали анализ), септик. Дом строился по проекту, есть все размеры, замеры. Ухоженный участок, есть межевание - 13 соток со всеми насаждениями: смородина разная, слива, облепиха, крыжовник, ранетка, есть теплица отличная 8м. В поселке - школа, больница, детский сад, почта, магазины. Замечательное место, как для отдыха, так и для проживания. Хорошие соседи, поселок интенсивно застраивается. Дом можно приобрести в ипотеку. Собственник один, обременений нет, чистая продажа. Покупатель оплачивает услуги агентства



В живописном поселкеПамяти 13 борцовпродаётся дом в жилом состоянии на капитальном фундаменте, Окна Пвх, новые ворота, Капитальный гараж с ямой для ремонта, во дворе скважина с вкусной природной водой, множество построек: Баня, летняя кухня, дровеник, подвал и т. Д. Удобства на улице. Отопление печное. В доме электричество, русская печь. Участок правильной формы. Два огорода с плодовыми деревьями и растениями. Две теплицы.Плодородная,ухоженная,удобренная земля-чернозем.Две теплицы. Плодородная Удобренная, ухоженная земля-чернозём. Рядом с домом контейнер для мусора, который вывозится регулярно. Дом находится на главной улице Гурского. Рядом автостанция, остановка, Почта, магазины, река Кача, лес. В том числе в поселке есть Больница, школа, Сберкасса, Дом Культуры. Очень активная творческая и спортивная жизнь с праздниками, конкурсами, ярмарками и гуляниями. Отличная транспортная доступность: До Красноярска по трассе 50 км. До, а/п Красноярск 14 км. До посёлка Кедровый 7 км. (Там есть бассейн, музыкальная школа).



Продается дача в СНТ 1 завода "Сибэлектросталь", на участке, площадью 5.7 соток, расположен капитальный 2-этажный домик с печным отоплением, на первом этаже три комнаты, второй этаж мансардный, но есть возможность утеплить, есть место для машины.Также есть баня с парилкой и душем, водопровод летний, есть емкость на 8 кубов, теплицы, участок разработан и огорожен, имеются плодовые деревья и кустарники: абрикос, черноплодная рябина, вишня, ранетка, крыжовник, ремонтантная малина ,смородина, клубника. Участок крайний на улице, проезд широкий, отсыпан гравием. В шаговой доступности остановка общественного транспорта "Сады Юбилейный" Дополнительно оплачивается комиссия с покупателя. Код пользователя: 47442 Номер в базе: 9854207
| 🔷 Средняя цена продажи: | 2,9 млн руб. |
| 🔷 Средняя цена за м2: | 36,9 тыс. руб./м² |
| 🔷 Минимальная стоимость: | 160 тыс. руб. |
| 🔷 Самый дорогой объект: | 15,9 млн руб. |