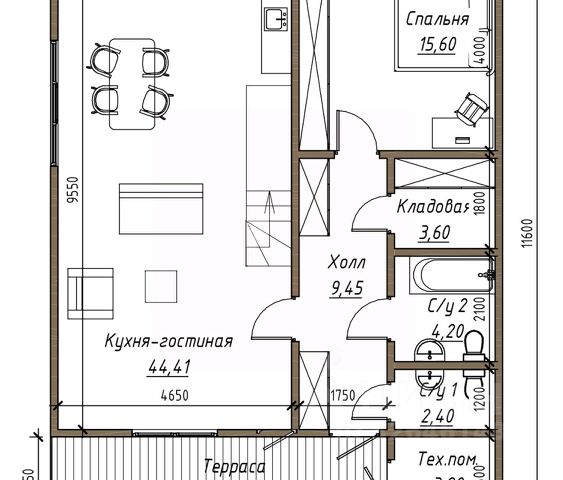
Продаётся просторный кирпичный дом площадью 253 кв.м. с гаражом и участком 25,23 сотки. Это предложение для тех, кто ценит качество строительства, свободу планировки и комфорт в каждой детали. Ключевые параметры и выгоды: Стены из 2,5 кирпича с утеплителем 150 мм Isover Strong и облицовкой премиум кирпичом "Магма Ceramic & Clinker". В доме будет очень тепло, даже в самые холодные зимы. Толщина стен 800 мм с вентилируемым зазором. Обеспечивает отличную тепло- и звукоизоляцию. Фундамент монолитная утеплённая плита с ЭППС Thermit XPS. Дом стоит на надёжной основе, что гарантирует долговечность и устойчивость. Металлочерепица премиум класса "Испанская Сьерра". Крыша прослужит многие годы без необходимости замены. Окна Rehau Intelio с профилем 80 мм и двухкамерными стеклопакетами. Максимальная звукоизоляция и энергосбережение — тишина и тепло круглый год. Две несущие стены. Надёжность и основательность конструкции, возможность свободной перепланировки всех остальных помещений. Гараж 7,8 х 4,2 м с потолками до 3,3 м, с выходом из дома. Удобство для владельца автомобиля и дополнительное пространство для мастерской. Потолки 3 метра. Чувство простора и свободы в каждом помещении. Тёплый пол по всей площади дома. Комфорт и уют в любую погоду, ваши ноги всегда будут в тепле. Электричество 15 кВт с договором в Красноярскэнергосбыте. Готовая подключенная инфраструктура для комфортного проживания. Централизованное водоснабжение и газгольдер на 5 кубов. Заключен договор на обслуживание газового оборудования. Удобное и экономичное решение для отопления и водоснабжения. Необслуживаемый биосептик Скат-3 на 3000 литров с дренажным колодцем. Безопасная и автономная система, не требующая частого обслуживания. Планировка и преимущества: Три просторные спальни, светлый зал с местом для камина, кухня с островом — для тех, кто ценит функциональность и удобство. Практичная прачечная и гардеробная с окнами, два санузла — продуманный комфорт для всей семьи. Проход из дома в гараж, котельную и кладовую — всё под рукой, не выходя на улицу. Участок 25,23 сотки — ровный, правильной формы, идеальный для реализации любых ландшафтных идей. Солнце наполняет дом светом: утром в спальне, днём в зале, а вечерние закаты можно наблюдать прямо из окна кухни. Инфраструктура и безопасность: В посёлке круглосуточная охрана, пропускной режим и отличные подъездные дороги. Ведётся видеонаблюдение, а договор с Росгвардией обеспечит оперативное реагирование. Вся необходимая инфраструктура — школы, детсады, супермаркеты и торговые центры — всего в 5-10 минутах езды. Дополнительная информация: Один взрослый собственник, обременение на момент сделки будет погашено. Дом и участок зарегистрированы в Росреестре. Все документы на оборудование и стройматериалы в наличии. Все документы для продажи готовы для проверки вашим юристом. Поможем одобрить ипотеку под самый выгодный процент, дом подходит под сельскую ипотеку 3%. Полное юридическое сопровождение на всех этапах сделки. Сделка абсолютно безопасна — наша деятельность застрахована в САО "РЕСО-Гарантия" на 55 млн ₽. КУПИТЕ ДО КОНЦА ЯНВАРЯ, И ПОЛУЧИТЕ РОЖДЕСТВЕНСКУЮ СКИДКУ 300 000 ₽. Этот дом — ваш шаг к комфортной жизни без забот. Звоните, приезжайте на просмотр, и вы убедитесь сами! Арт. 134675986










































































