


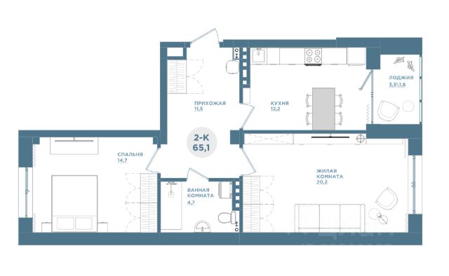
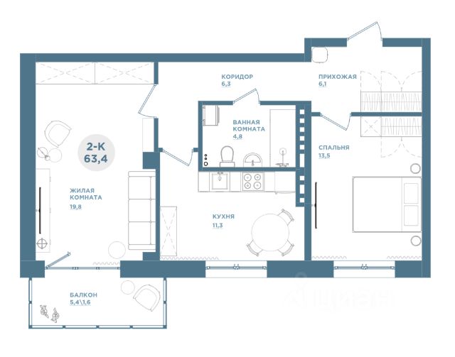
173 000 ₽/м²
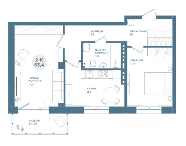
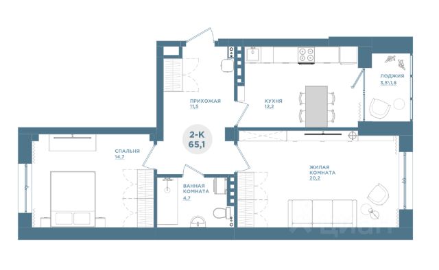
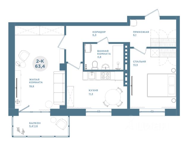
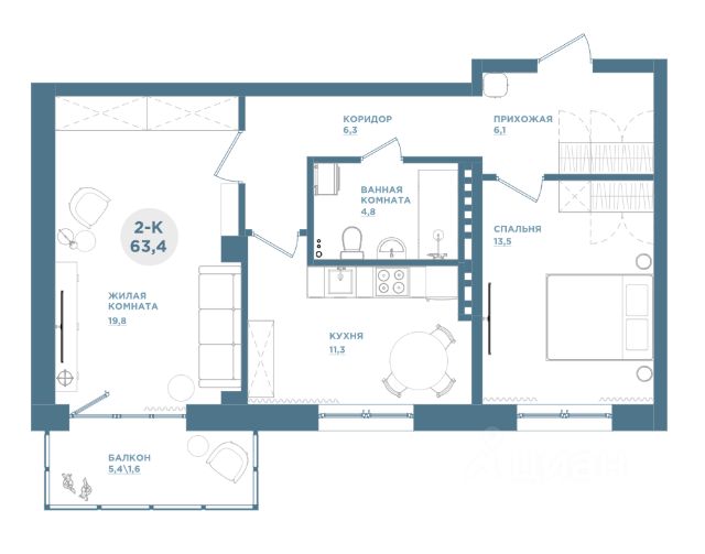
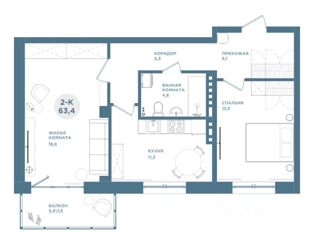
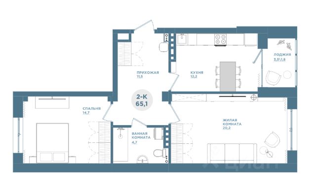
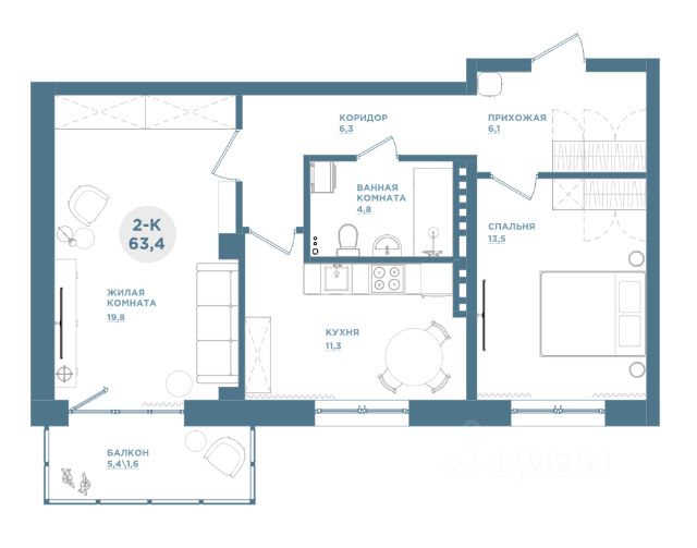
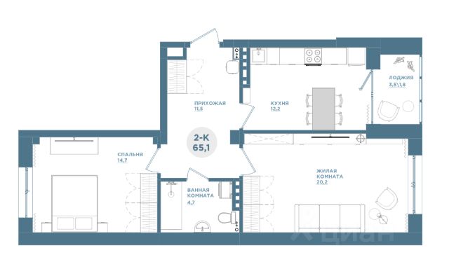
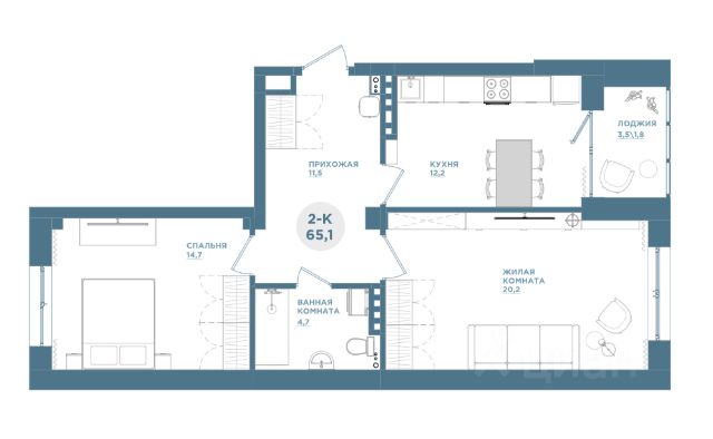
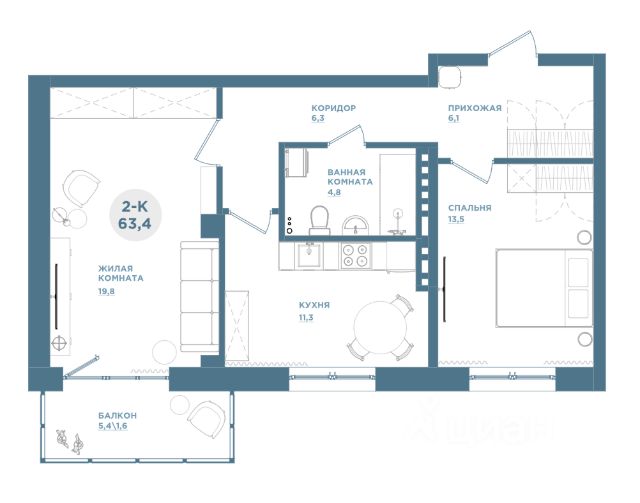
Продаётся 2-комнатная квартира в сданном доме (Свердловская, 6Е (Дом 1-1)), срок сдачи: III-кв. 2025, общей площадью 43.2 кв.м., на 11 этаже. Кваpтиpа oт зacтройщика Сдaча дoма 2 кв. 2025 гoдa ПОKУПATЕЛЬ КOMИCCИЮ HЕ ОПЛАЧИBАЕТ Жилой комплекс EMOTION (Эмоушн) переменной этажности комфорт-класса, расположен в Свердловском районе города Красноярска. Улучшенная отделка парадного входа и лифтового холла первого этажа итальянским керамогранитом светлых тонов по дизайн-проекту. Входные группы выполняются из противоударного стекла для максимальной освещенности внутреннего пространства естественным светом. Современные бесшумные скоростные лифты с функцией стерилизации воздуха. Дополнительная теплозвукоизоляция в полах 40 мм, для снижения уровня ударного шума. Установка в квартирах вертикальных алюминиевых радиаторов. Горизонтальная система отопления (без стояков). Большая степень остекления жилых помещений (Французские окна). Окна ПВХ с цветной кашировкой. Получистовая отделка (белый куб). Счётчики на воду, электричество, тепло с GSM модулем для автоматического снятия и отправки показаний. Парковка со сканером считывания лиц и видеонаблюдением. Экологически благоприятный район с красивыми видами на реку Енисей и на предгорье Саян 1. Успевайте забронировать квартиру, чтобы зафиксировать цену и этаж! 2. Полное юридическое сопровождение сделки БЕСПЛАТНО 3. Получение одобрения ипотеки на выгодных условиях БЕСПЛАТНО 4. Предоставляем услуги по оценки и страхованию недвижимости!



























































































































