Мы используем куки-файлы. Соглашение об использовании
Площадь1 710 м²
Этажность3
Отчёт о привлекательности объектаУзнайте, насколько помещение и район подходят для вашего бизнеса
Что входит в отчёт
  • Охват населения
  • Пешеходный трафик
  • Автомобильный трафик
  • Средний бюджет семьи по району
  • Арендные ставки рядом
  • Точки притяжения
  • Конкуренты в радиусе 1 км
  • Рекомендации по выбору места для бизнеса
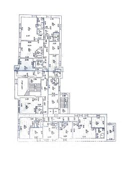
Предлагаю на продажу отдельностоящее здание расположенное в историческом центре города Красноярска. В здании действующий бизнес отель-ресторан с неповторимым стилем купечества конца девятнадцатого века. Объект состоит из трех уровней (1,2,3 этажи и небольшой цоколь 71кв.м). Общая площадь здания 1710 кв.м. На первом этаже расположен ресторан, зона ресепшн, зона отдыха, банкетный зал и кухня. На верхних этажах комфортабельные номера. Есть проект для организации конференц-зала. Объект подойдет как для ведения отельного бизнеса, так и для организации офиса крупной компании. Не смотря на то, что здание расположено в самом центре деловой жизни, оно обособлено и вас не побеспокоит шум и городская суета. Земельный участок под зданием в собственности, общая площадь 2086 кв.м. На территории просторная парковка с видеонаблюдением, выложенная брусчаткой. Звоните, с удовольствием отвечу на все ваши вопросы. ПРОСМОТР ТОЛЬКО ПО ПРЕДВАРИТЕЛЬНОМУ СОГЛАСОВАНИЮ.
lock

Войдите или зарегистрируйтесь
для просмотра информации

Просматривайте условия сделки и всю информацию об объекте
Сохраняйте фильтры в поиске и не вводите заново
Доступ к избранному с любого устройства
Неограниченное добавление в избранное
Позвоните автору
Вам ответят на все вопросы
Остались вопросы по объявлению?
Позвоните владельцу объявления и уточните необходимую информацию.
  • Инфраструктура
  • Похожие рядом
Приточная вентиляция
Местное кондиционирование
Центральное отопление
Сигнализация
Помощь надёжных риелторов
Риелтор партнёр Циан поможет купить или продать любую недвижимость
215 000 000 ₽
2 971 678 $
2 557 265
Цена за метр
125 731 ₽
Налог
УСН
Агентство недвижимости
Документы проверены