110 638 ₽/м²
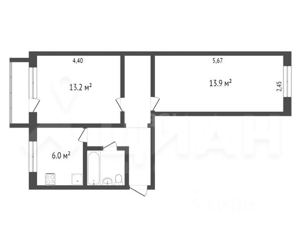
Продаётся замечательная двухкомнатная квартира в Кировском районе. Дом расположен в глубине квартала, изолирован от шумных дорог. Чистый, ухоженный подъезд. Доброжелательные, порядочные соседи, ценящие чистоту. Спокойный, тихий двор, во дворе детская, спортивная площадка, детский садик 110. В шаговой доступности: гимназия 6, остановки общественного транспорта, удобная транспортная развязка, медицинские учреждения, продуктовый рынок, ТЦ Красноярье, супермаркеты, множество магазинов, кафе, рестораны, парки, культурные учреждения, сквер Западный и многое другое для комфортной жизни. Ухоженная, тёплая квартира, не угловая в отличном состоянии. Комнаты смежные, общая площадь 45,6 кв.м. (без учёта застеклённого с внутренней отделкой балкона). На окнах установлены стеклопакеты, отделка стен обои, натяжные потолки, напольное покрытие линолеум, поменяны радиаторы. Совмещённый санузел, отделка выполнена с использованием керамической плитки и сантехнического оборудования, установлены счётчики. В комнате достаточно габаритный встроенный шкаф Стэнли, стенка, на кухне качественный гарнитур со встроенной техникой, современная газовая плита, барные стулья. Просмотр возможен в любое удобное время, по договорённости на ключах. Более подробная информация по телефону. Не упустите возможность стать владельцем этой замечательной квартиры! Продам 1-комнатную квартиру в Иланском.

















































