


От года, комм. платежи включены (без счётчиков), без комиссии, без залога
Сдам нежилое помещение на первой линии в развитом мкр-не "Северного". Данный объект расположен непосредственно вдоль основных улиц и магистралей с высоким пешеходным и автомобильным трафиком, с большими ветринами и легким доступом для посетителей. Помещение универсальное, подходит под любой вид деятельности. Планировка имеет выставочный зал и кабинетную систему, санузел, все коммуникации. Преимущество автомобильного трафика сводится к тому, что возле помещения имеются парковочные места, а так же имеются остановки общественного транспорта. Чем ближе объект к остановкам, тем лучше. Развитая инфраструктура. Удобная транспортная развязка во все районы города. Звоните. Записывайтесь на просмотр. Рады будем помочь Вашему удачному бизнесу. Услуги за подготовку и сопровождение сделки 40 000. Сдается гараж на проспекте Металлургов в городе Красноярск.



От года, комм. платежи включены (без счётчиков), комиссия 100%, без залога
Арендатор комиссию не оплачивает! Сдается в аренду 1000р за квадратный метр (можно снять часть помещения, оговаривается индивидуально, до 70,8 м2) свободной планировки (по соседству на остальной площади помещения располагается магазин "Ткани"). Помещение находится перекрестке пр. Красноярский рабочий и ул. Мичурина, первая линия проспекта, на первом этаже жилого дома, с отдельным парадным и дополнительным техническим входами. Помещение свободной планировки с несущими колоннами, позволяет сформировать удобное рабочее пространство в соответствии с особенностями деятельности. В помещении не плохое естественное освещение на 2 стороны помещения, а так же достаточное количество осветительных приборов. Высота потолков 4,15м, имеется подсобная комната с с/у. Произведен косметический ремонт. Выделенная электрическая мощность 25 кВт. Помещение сдается от ИП, без НДС. Коммунальные услуги не входят в аренду и оплачиваются отдельно по факту использования. Код пользователя: 57265 Номер в базе: 9773373 Снять гараж на проспекте Металлургов в городе Красноярск.



От года, комм. платежи включены (без счётчиков), без комиссии, без залога
Сдам в аренду нежилое помещение 120м2 в бетонном здании Советской постройки. Имеется отдельный кабинет сразу около входа и большое помещение, которое можно разделить перегородкой. Высота помещения около 8 метров. Помещение отапливается от собственной котельной. Очень удачное расположение можно заехать с двух сторон с пр. Авиаторов. Интенсивный автомобильный трафик. Так же на крыше смонтирована большая металлическая конструкция для размещения рекламных щитов к которой можно подвести электричество и тогда вашу рекламу будет видеть почти весь город Гараж на проспекте Металлургов в городе Красноярск.



От года, комм. платежи включены (без счётчиков), без комиссии, без залога
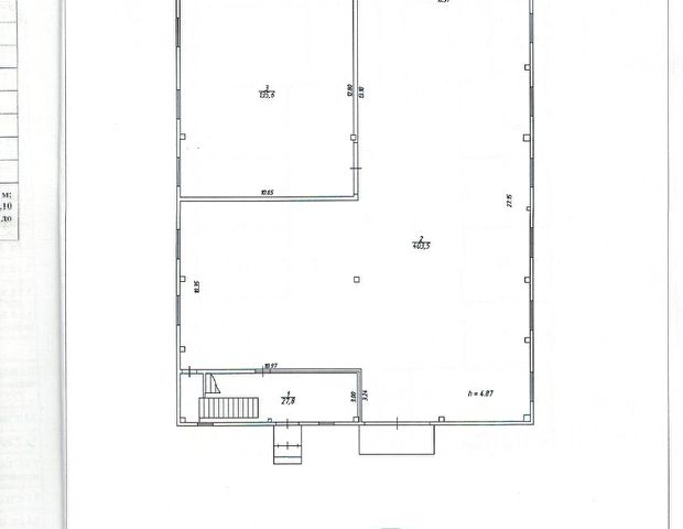
Предлагается цех в аренду, площадью 1052,18 кв.м для ведения вашей коммерческой деятельности. - Цех имеет два въезда (высота 4,5метра) , цех оборудован двумя кран-балками грузоподъемностью 5 тонн, имеются бытовые помещения. Имеется, дополнительное временное сооружение, прилегающее к цеху, площадью 169,37 кв.м -При необходимости, можем обеспечить несколькими офисными помещениями, разной квадратуры до 100 кв.м . -Большая прилегающая к цеху территория до 1 Га -Водоснабжение, электроэнергия оплачивается отдельно, в стоимость аренды входит отопление. Без НДС Сдаю гараж на проспекте Металлургов в городе Красноярск.



От года, комм. платежи включены (без счётчиков), без комиссии, залог 150 000 ₽
Сдам помещение свободного назначения общей площадью 145,9 кв.м. Хорошее расположение, отличный пеший трафик. Многочисленные жители новых домов жилого района станут вашими потенциальными клиентами. Все, кто заезжает в ЖК и те, кто гуляет по улицам в ЖК Южный берег, несомненно заметят Ваши витрины и Ваш бизнес. Большие витражные окна выходят на обе стороны здания. Придомовая парковка. Чистовая отделка. Свободная планировка. Подходит под любой вид деятельности (кафе, офис, досуговый центр, детский центр, салон красоты, магазин или выставочный зал). Круглосуточная охрана района. Оплата 150 000 рублей/мес. Залог 150 000 рублей/мес. Коммунальные платежи не входят в стоимость арендной платы. Звоните, пишите, смотрите, мы обсудим все нюансы и обязательно договоримся.

От года, комм. платежи включены (без счётчиков), без комиссии, без залога
Сдаётся помещение на первом этаже 539 кв.м. Имеются ворота высотой 3м. Подойдет под склад, магазин автошин и дисков, автотюнинг. Есть возможность арендовать отдельное помещение на втором этаже для сотрудников. Электричество оплачивается отдельно по счетчику.
| 🔷 Средняя цена аренды: | 12 тыс. руб. |
| 🔷 Минимальная стоимость: | 12 тыс. руб. |
| 🔷 Самый дорогой объект: | 12 тыс. руб. |