Мы используем куки-файлы. Соглашение об использовании
Проверено в Росреестре
Общая площадь230 м²
Участок10 сот.
Материал домаБлочный
Этажей в доме1
Год постройки2025
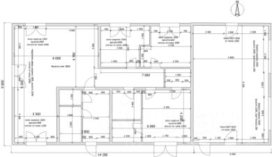
Учитывая формирование тренда сезона 2025-2026 на одноэтажные дома в направлении загородного строительства застройщик коттеджного поселка Емельяновская горка сделал достойное предложение на рынке для тех, кто знает и ценит все преимущества проживания в одноэтажном доме. В этой планировке оптимально учтены современные тенденции и расположение помещений. В студии (гостинная-кухня) потолки высотой 3м , окна в пол с выходом на террасу. Имеются 2 просторные комнаты и мастер-спальня, 3 санузла, гардеробная. Дом построен из Теплоблока толщина стен 300мм, монолитное перекрытие 1 этаж, с встроенной системой теплый пол, стены -цементно-песчаная штукатурка с финишной гипсовой шпатлевкой. Межкомнатные двери Альберо, натяжные потолки, пол - линолеум, медная электропроводка с установкой розеток и выключателей. Система отопления-Электрокотел Зота 12 кВТ, радиаторы + теплый водяной пол. Гараж на 2 автомобиля с 2 воротами. Дом расположен в коттеджном поселке "Емельяновская горка" по улице Дружбы соседей, 5. Это наверное самый динамичный поселок в Красноярске. В настоящее время в поселке построено и заселено более 260 домов, организована вся необходимая инфраструктура, отсыпаны дороги, построена ЛЭП и централизованный водопровод, уличное освещение. Есть управляющая компания. Прописка пгт. Емельяново, а это районный центр со всеми объектами социального назначения, магазины, больницы, детские сады, школы. Ходит школьный автобус. Особенно хочется отметить тенденцию на протяжении последних трех лет на спрос наших домов у молодой публики. Преобладающие покупатели это молодые семьи возрастом до 35 лет. За 10 лет существования поселка сформировался дружный и социально активный коллектив жителей. Много ребятишек. Предложение от собственника-застройщика. Работаем с ипотечными программами семейная и сельская ипотека 3%. Возможно привлечение материнского капитала. Рассмотрю вариант обмена на квартиру в г. Красноярске.
Позвоните автору
Вам ответят на все вопросы

О доме

Площадь

230 м²

Материал дома

Блочный

Состояние дома

Можно жить

Количество этажей

1

Количество спален

3

Год постройки

2025

Об участке

Площадь

10 сот.

Категория земель

Земли сельхозназначения

Статус участка

Садоводство

Коммуникации и удобства

Санузел

1 в доме

Канализация

Септик

Водоснабжение

Центральное

Отопление

Электрическое

Электричество

Есть

Газ

Нет

Дополнительно

Гараж

Спросите умного помощника
Получите экспертное мнение о жилье

Информация из Росреестра

Кадастровый номер участка 24:11:0210204:*** указал продавец

Данные получены 3 декабря 2024 года

Oб участке
Категория земель
Земли сельскохозяйственного назначения
Разрешённое использование
Для ведения гражданами садоводства и огородничества
Обременение
Heт сведений
Читать дальше
План участка
Превью плана участка

Расположение

Подпишитесь на объявления в этой локации
Мы сообщим, как только поблизости появится что‑нибудь новенькое
Ипотечный калькулятор
  • 20.1%
  • 30%
  • 40%
  • 50%
лет
  • 10 лет
  • 20 лет
  • 30 лет
Загружаем предложения от застройщика и банков
Хотите продать недвижимость?Разместите объявление на ЦианРазместить
9 200 000 ₽
Цена за метр
40 000 ₽/м²
Ипотека
возможна
Агентство недвижимости
Документы проверены