Мы используем куки-файлы. Соглашение об использовании
Только на Циан
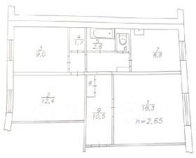
Общая площадь65,1 м²
Жилая площадь39,7 м²
Площадь кухни8,8 м²
Этаж1 из 9
Год постройки1988
К покупке предлагается трехкомнатная квартира с лучшим расположением в районе Общей площадью 65,1 м2 на 1 этаже 9-ти этажного панельного дома, расположенной в микрорайоне Солнечный по адресу 60 лет Образования СССР дом 23 В квартире сделан косметический ремонт, санузел раздельный из настенного кафеля, полы деревянные с линолеумом, обои на стенах. Для комфортного отдыха и занятий спортом во дворе установлены детская и спортивная площадки. В здании: 24 Градуса Специализированная климатическая компания по установке кондиционеров и вентиляции, магазин находится за домом Инфраструктура развита: школа 144, детский сад 89, в пешем доступе Взрослая и детская поликлиники, Родильный дом 1, остановка общественного транспорта с семью маршрутами в любую точку города. Sunny kids Английский детский клуб, Филиал ЦТиР 1 Культурно-досуговые центры, Спортивные секции, торговый центр, парк и различные фитнес-клубы. В радиусе 2 км более 5 автосервисов, автомоек и несколько заправочных станций. Если вы цените развитую инфраструктуру, удобную транспортную доступность и невысокую этажность, то приглашаем вас оценить все преимущества данной квартиры лично. Она ждёт своих новых владельцев! Звоните прямо сейчас и договоримся о просмотре в удобное для вас время! Покупатель оплачивает дополнительно агентское вознаграждение
Позвоните автору
Вам ответят на все вопросы

О квартире

Тип жилья

Вторичка

Общая площадь

65,1 м²

Жилая площадь

39,7 м²

Площадь кухни

8,8 м²

Санузел

1 раздельный

Вид из окон

На улицу и двор

Ремонт

Косметический

Перепланировка

Не было

О доме

Год постройки

1988

Строительная серия

111-97

Количество лифтов

1 пассажирский

Тип дома

Панельный

Тип перекрытий

Железобетонные

Подъезды

6

О подъезде

Есть мусоропровод

Парковка

Наземная

Отопление

Индивидуальный тепловой пункт

Аварийность

Нет

Юридические особенности

Несовершеннолетние собственники

Нет

Материнский капитал при покупке

Не использовался

Спросите умного помощника
Получите экспертное мнение о жилье

Расположение

Ипотечный калькулятор
  • Базовая
  • Семейная
  • ИТ-ипотека
  • 20%
  • 30%
  • 40%
  • 50%
лет
  • 10 лет
  • 20 лет
  • 30 лет
Загружаем предложения от застройщика и банков
Зимой будет тепло
Дома такой же серии обычно хорошо сохраняют тепло
7
Помощь риелтора
Проверенный риелтор поможет купить или продать квартиру
6 500 000 ₽
Цена за метр
99 846 ₽/м²
Условия сделки
альтернатива
Ипотека
возможна
Агентство недвижимости
На Циан
2 года
Объектов в работе
135
Риелтор
Суперагент
4,0・4