Мы используем куки-файлы. Соглашение об использовании
Только на Циан
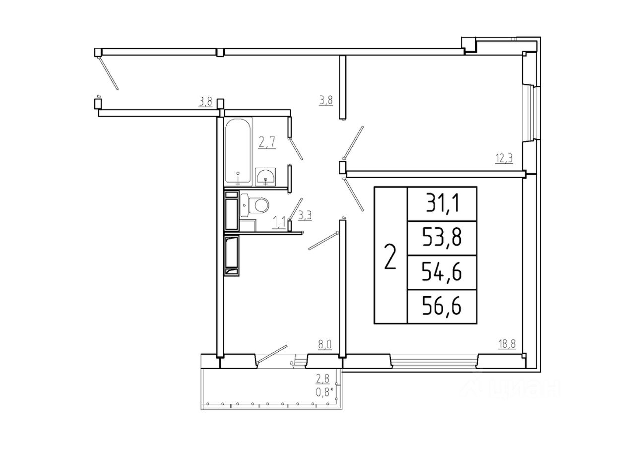
Общая площадь54,6 м²
Этаж11 из 17
Год сдачи2026
ДомНе сдан
ОтделкаБез отделки
Новый жилой комплекс от Специализированного застройщика "Система" расположен по адресу: г. Красноярск, по ул. Норильская. Очень важная информация!!! ПОДХОДИТ ПОД СЕМЕЙНУЮ ИПОТЕКУ!!! ПOКУПАТEЛЬ КOMИCCИЮ HЕ OПЛАЧВАEТ!!! Получение одoбpения ипoтeки и вeдeние сдeлки абcoлютно БЕСПЛAТНО!!! Без первоначального взноса купить не возможно! Поможем продать вашу квартиру и приобрести новую! Звоните, проведем показ квартиры, забронируем понравившуюся без задатков и пред. оплат!

О квартире

Тип жилья

Новостройка

Общая площадь

54,6 м²

Высота потолков

2,64 м

Отделка

Без отделки

О доме

Количество лифтов

2 пассажирских

Тип дома

Панельный

Понравилась квартира — узнайте о ней больше

Застройщик ответит на все вопросы

Отделка в ЖК

  • Без отделки

3D-тур

Посмотрите 3D-тур, чтобы оценить объект
Похоже на то, что вы ищете?

Акции в ЖК «Три слона»

Узнайте про персональные условия и дополнительные скидки при покупке квартиры у застройщика
Ипотечный калькулятор
  • Базовая
  • Семейная
  • ИТ-ипотека
  • 20%
  • 30%
  • 40%
  • 50%
лет
  • 10 лет
  • 20 лет
  • 30 лет
Загружаем предложения от застройщика и банков
Корпус проверен наш.дом.рф
Обновлено 5 мая 2026
  • Нет в реестре проблемных объектов
  • Застройщик не банкрот
  • Есть эскроу счёт
  • Актуальные фото стройки

Ещё квартиры в жилом комплексе

69 квартир в продаже · Сдача в 2 кв. 2026
Агентство недвижимости
Красноярское агентство новостроек
  • 4 года 4 месяца на Циане
  • 7 807 800 ₽
    Цена за метр
    143 000 ₽/м²
    Условия сделки
    долевое участие (214-ФЗ)
    Агентство недвижимости
    Красноярское агентство новостроек