Мы используем куки-файлы. Соглашение об использовании
Площадь1 005 м²
Этажность4
Отчёт о привлекательности объектаУзнайте, насколько помещение и район подходят для вашего бизнеса
Что входит в отчёт
  • Охват населения
  • Пешеходный трафик
  • Автомобильный трафик
  • Средний бюджет семьи по району
  • Арендные ставки рядом
  • Точки притяжения
  • Конкуренты в радиусе 1 км
  • Рекомендации по выбору места для бизнеса
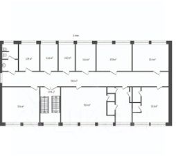
Коммерческий актив с потенциалом: здание с землёй в собственности в промзоне Красноярска. Продаётся капитальное железобетонное здание с подвальным этажом на территории ХМЗ, Свердловский район г. Красноярска. Площадь здания — 1005 кв.м, плюс земельный участок 3878 кв.м в собственности. Объект полностью оформлен юридически, без обременений. Здание 1986 года постройки — конструктив в хорошем состоянии. Установлены пластиковые окна, смонтирована новая система отопления. Внутренние помещения требуют ремонта и адаптации под конкретные задачи — это не минус, а возможность сформировать объект под себя без переплаты за чужой "универсальный ремонт". Участок огорожен, есть возможность дополнительного строительства. Территория позволяет реализовать производственные, складские или инвестиционные задачи. Подвальное помещение подходит под технические нужды, архив или склад. Расположение — промышленная зона с доступом с ул. Матросова. Подъезд через производственные кварталы, но логистика рабочая. Именно здесь удобно выстраивать бизнес, где важны не витрины, а функции и контроль над территорией. Этот объект — не про внешнюю оболочку. Это задел под долгосрочный проект: база компании, производство, техцентр или редевелопмент под аренду. Капитальное здание и земля в собственности в рабочей зоне города — предложение, которое встречается всё реже. Если вы ищете актив с потенциалом и готовы вложиться в результат — этот вариант может стать основой вашей следующей стратегической точки роста. Звоните, чтобы обсудить детали и договориться о просмотре. Арт. 134677243
lock

Войдите или зарегистрируйтесь
для просмотра информации

Просматривайте условия сделки и всю информацию об объекте
Сохраняйте фильтры в поиске и не вводите заново
Доступ к избранному с любого устройства
Неограниченное добавление в избранное
Позвоните автору
Вам ответят на все вопросы
Остались вопросы по объявлению?
Позвоните владельцу объявления и уточните необходимую информацию.
  • Инфраструктура
  • Похожие рядом
Центральное отопление
Помощь надёжных риелторов
Риелтор партнёр Циан поможет купить или продать любую недвижимость
25 000 000 ₽
336 491 $
282 330
Цена за метр
24 876 ₽
Налог
НДС не включен
Агентство недвижимости
На Циан
7 лет
Объектов в работе
37
Риелтор
Суперагент