Мы используем куки-файлы. Соглашение об использовании
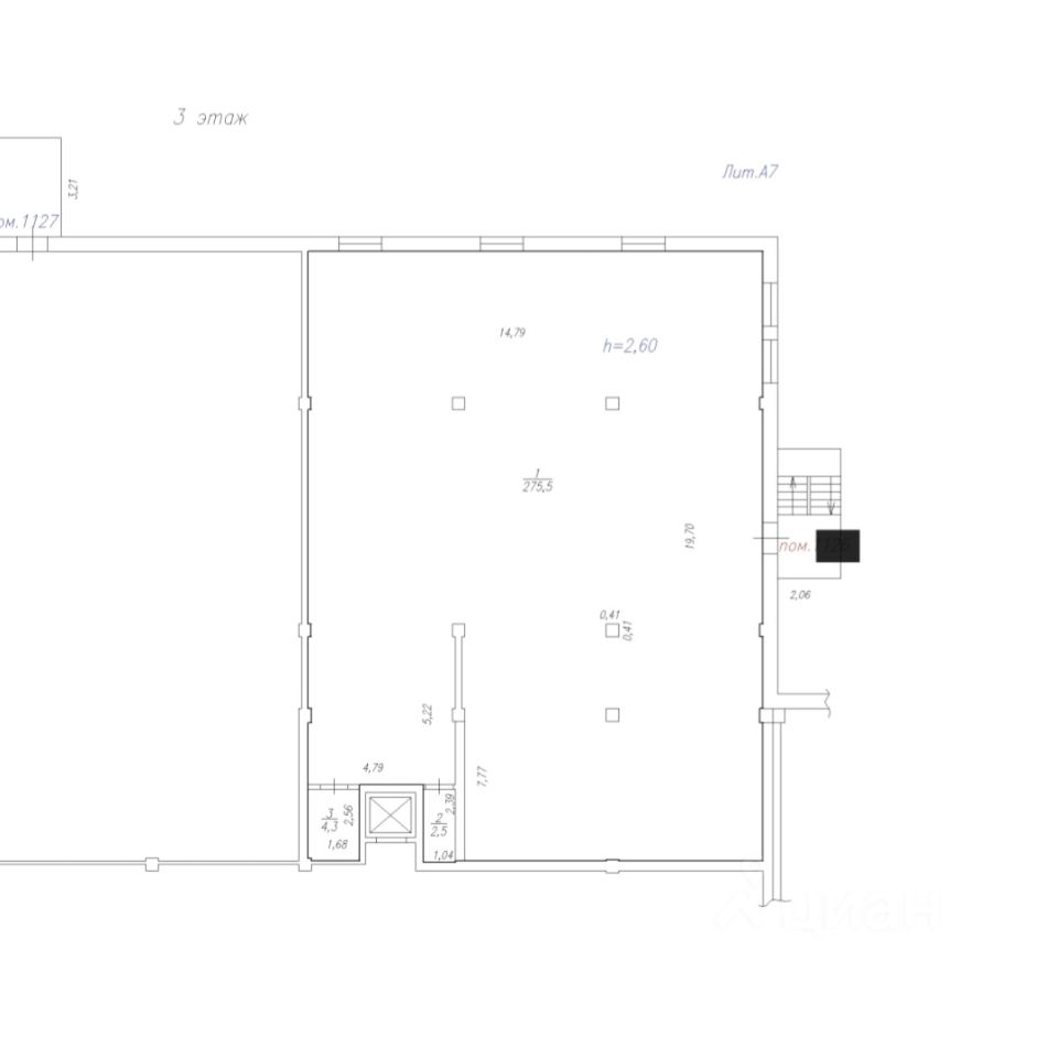
Помещение свободного назначения, 282,3 м²

Продается помещение свободного назначения, 282,3 м²

Площадь282,3 м²
Этаж3 из 17
Отчёт о привлекательности объектаУзнайте, насколько помещение и район подходят для вашего бизнеса
Что входит в отчёт
  • Охват населения
  • Пешеходный трафик
  • Автомобильный трафик
  • Средний бюджет семьи по району
  • Арендные ставки рядом
  • Точки притяжения
  • Конкуренты в радиусе 1 км
  • Рекомендации по выбору места для бизнеса
Продам нежилое помещение 282,3м2 по отличной цене. Помещение свободного назначения, правильной формы. Два входа. Есть парковочная зона. Возможно использовать под разные виды деятельности. В последнее время работало в качестве хостела. Есть душевые зоны, сан узлы и тд. Рассмотрим обмен на авто либо недвижимость (дом, квартира и тд). Как с Вашей доплатой, так и относительно рыночной стоимости того что предложите. Рассмотрим все варианты. Обременений и ограничений нет. Один собственник. Отвечу на все интересующие Вас вопросы. Звоните либо пишите в чат.
lock

Войдите или зарегистрируйтесь
для просмотра информации

Просматривайте условия сделки и всю информацию об объекте
Сохраняйте фильтры в поиске и не вводите заново
Доступ к избранному с любого устройства
Неограниченное добавление в избранное
Позвоните автору
Вам ответят на все вопросы
Остались вопросы по объявлению?
Позвоните владельцу объявления и уточните необходимую информацию.
  • Инфраструктура
  • Похожие рядом
  • Площадь участка0 сот.
  • Общая площадь282,3 м²
Приточная вентиляция
Центральное отопление
Помощь надёжных риелторов
Риелтор партнёр Циан поможет купить или продать любую недвижимость
12 000 000 ₽
168 961 $
145 214
Цена за метр
42 508 ₽
Налог
УСН
Агентство недвижимости
Документы проверены
На Циан
6 лет
Объектов в работе
96