Мы используем куки-файлы. Соглашение об использовании
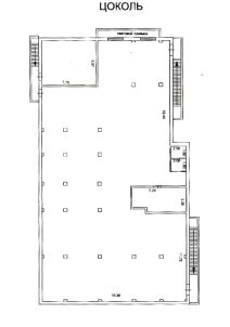
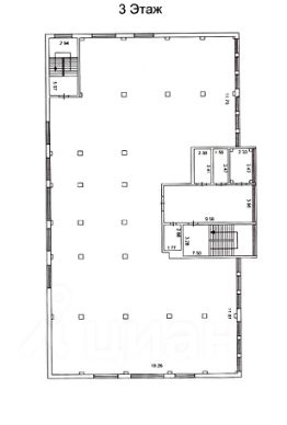
Площадь2 903 м²
Этажность4
Отчёт о привлекательности объектаУзнайте, насколько помещение и район подходят для вашего бизнеса
Что входит в отчёт
  • Охват населения
  • Пешеходный трафик
  • Автомобильный трафик
  • Средний бюджет семьи по району
  • Арендные ставки рядом
  • Точки притяжения
  • Конкуренты в радиусе 1 км
  • Рекомендации по выбору места для бизнеса
Продам отдельно стоящее здание в густонаселенном с отличным трафиком микрорайоне Солнечный. Объект общей площадью 2903 кв.м 4 уровня на земельном участке 25,8 соток в собственности. С 1 по 3 этаж есть лифт. На каждом этаже санузел. Здание новое 6 лет. Коммуникации: водоснабжение - центральное, канализация - септик, отопление автономное робот-котел на обслуживании у организации, электричество 260 кВт. Здание полностью сдано в аренду (ГАБ). ПРОСМОТР ТОЛЬКО ПО ПРЕДВАРИТЕЛЬНОМУ СОГЛАСОВАНИЮ.
lock

Войдите или зарегистрируйтесь
для просмотра информации

Просматривайте условия сделки и всю информацию об объекте
Сохраняйте фильтры в поиске и не вводите заново
Доступ к избранному с любого устройства
Неограниченное добавление в избранное
Позвоните автору
Вам ответят на все вопросы
Остались вопросы по объявлению?
Позвоните владельцу объявления и уточните необходимую информацию.
  • Инфраструктура
  • Похожие рядом
Приточная вентиляция
Автономное отопление
Помощь надёжных риелторов
Риелтор партнёр Циан поможет купить или продать любую недвижимость
300 000 000 ₽
4 212 951 $
3 634 404
Цена за метр
103 342 ₽
Налог
УСН
Агентство недвижимости
Документы проверены