Мы используем куки-файлы. Соглашение об использовании
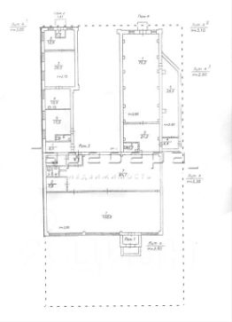
Площадь390,4 м²
КатегорияДругое
Отчёт о привлекательности объектаУзнайте, насколько помещение и район подходят для вашего бизнеса
Что входит в отчёт
  • Охват населения
  • Пешеходный трафик
  • Автомобильный трафик
  • Средний бюджет семьи по району
  • Арендные ставки рядом
  • Точки притяжения
  • Конкуренты в радиусе 1 км
  • Рекомендации по выбору места для бизнеса
Предлагаем купить отдельно стоящее здание в Советском районе г. Красноярска. Здание кирпичное, одноэтажное, площадью 390,4 кв.м. Расположено на собственном земельном участке 9,5 соток (951 кв.м.). Земля в собственности, не в аренде! Объект полностью готов к работе. Ничего достраивать и согласовывать не нужно — въезжай и пользуйся. Коммуникации под ключ: • Городские сети. Два независимых ввода электричества (9 кВт + 15 кВт, есть договоры). Есть возможность увеличения мощности под любые задачи. • Центральное отопление, холодная вода, горячая вода от бойлера. Земля в собственности: Вы получаете не просто стены, а полноценный участок с возможностью развития. Действующий бизнес : Продажа возможна вместе с действующим бизнесом хостел с активной клиентской базой и торговое предприятие с госконтрактами. • Закрытый внутренний двор. • Собственная парковка для сотрудников/гостей/клиентов (10 мест). • Обустроена площадка под ТКО (договор есть). • Видеонаблюдение по периметру и внутри. • Сплит-системы в помещениях. Перспектива роста: Высота потолков позволяет надстроить второй этаж — увеличиваете полезную площадь почти в 2 раза без покупки новой земли. Характеристики: • Общая площадь: 390,4 м² (1 этаж). • Высота потолков: 2,6 м. • Отделка: офисная/складская (универсальная). • Вход: отдельный, с улицы. Локация: 3 мкрн Зеленой рощи. Рядом сквер Космонавтов, остановки общественного транспорта. Назначение: Подойдет под любой вид деятельности: офис, медицинский центр, стоматология, магазин, склад, производство, мини-гостиница (уже работает!), хостел, аптека. Варианты покупки: Здание можно купить и получать прибыль от аренды действующего бизнеса Здание можно выкупить вместе с бизнесом Можно купить просто здание, бизнес съедет. По всем вопросам звоните!
lock

Войдите или зарегистрируйтесь
для просмотра информации

Просматривайте условия сделки и всю информацию об объекте
Сохраняйте фильтры в поиске и не вводите заново
Доступ к избранному с любого устройства
Неограниченное добавление в избранное
Позвоните автору
Вам ответят на все вопросы
Остались вопросы по объявлению?
Позвоните владельцу объявления и уточните необходимую информацию.
  • Инфраструктура
  • Похожие рядом
Помощь надёжных риелторов
Риелтор партнёр Циан поможет купить или продать любую недвижимость
42 000 000 ₽
591 959 $
512 306
Цена за метр
107 582 ₽
Налог
УСН
Агентство недвижимости
Документы проверены