Мы используем куки-файлы.
Соглашение об использовании
Умный помощник
+ Разместить за 0 ₽
Войти
Аренда
Продажа
Новостройки
Дома и участки
Коммерческая
Ипотека
Мой дом
Сервисы
Приложение Циан
Ещё
Ещё
Ещё
СМ.СИТИ
Фотографии (0)
Описание
Расположение
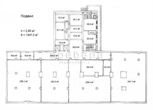
Торговая площадь, 7 594 м²
Недвижимость в Красноярске
Коммерческая
Продажа нежилых помещений в Красноярске
Качинская улица
Обновлено: 23 дек, 13:05
Объявление снято с публикации
Продается торговая площадь, 7 594 м²
Красноярский край
,
Красноярск
,
Качинская ул.
,
64
Площадь
7 594 м²
Этаж
2 из 2
Помещение
Свободно
Объявление снято с публикации, поищите ещё что-нибудь
Войдите или зарегистрируйтесь
для просмотра информации
Войти
Просматривайте условия сделки и всю информацию об объекте
Сохраняйте фильтры в поиске и не вводите заново
Доступ к избранному с любого устройства
Неограниченное добавление в избранное
335 000 000 ₽
4 491 237 $
3 816 973 €
Цена за метр
44 114 ₽
Налог
НДС включен: 55 833 333 ₽
Агентство недвижимости
АРЕВЕРА
Документы проверены
Риелтор
АРЕВЕРА Недвижимость Ш
1,0・1