Мы используем куки-файлы. Соглашение об использовании
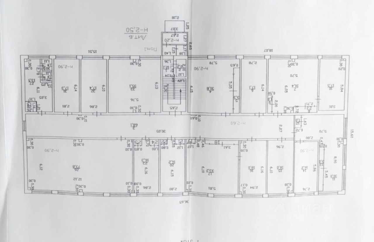
Площадь2 006,4 м²
Этажность3
КлассC
Отчёт о привлекательности объектаУзнайте, насколько помещение и район подходят для вашего бизнеса
Что входит в отчёт
  • Охват населения
  • Пешеходный трафик
  • Автомобильный трафик
  • Средний бюджет семьи по району
  • Арендные ставки рядом
  • Точки притяжения
  • Конкуренты в радиусе 1 км
  • Рекомендации по выбору места для бизнеса
Продается отдельно стоящее здание в г. Красноярске, Железнодорожный район. Площадь 2006,4 кв.м. Этажность 3 +цоколь Первая линия помещения сдавались под офисы Прекрасное здание для бизнеса. хорошая транспортная развязка - до исторического центра горда 10 минут (менее 2км) Звоните, покажем , оформим.
lock

Войдите или зарегистрируйтесь
для просмотра информации

Просматривайте условия сделки и всю информацию об объекте
Сохраняйте фильтры в поиске и не вводите заново
Доступ к избранному с любого устройства
Неограниченное добавление в избранное
Позвоните автору
Вам ответят на все вопросы
Остались вопросы по объявлению?
Позвоните владельцу объявления и уточните необходимую информацию.
  • Инфраструктура
  • Похожие рядом
Центральное отопление
Помощь надёжных риелторов
Риелтор партнёр Циан поможет купить или продать любую недвижимость
240 000 000 ₽
3 281 940 $
2 817 464
Цена за метр
119 618 ₽
Налог
УСН
Агентство недвижимости
Суперагент
На Циан
2 года
Объектов в работе
27