Мы используем куки-файлы. Соглашение об использовании
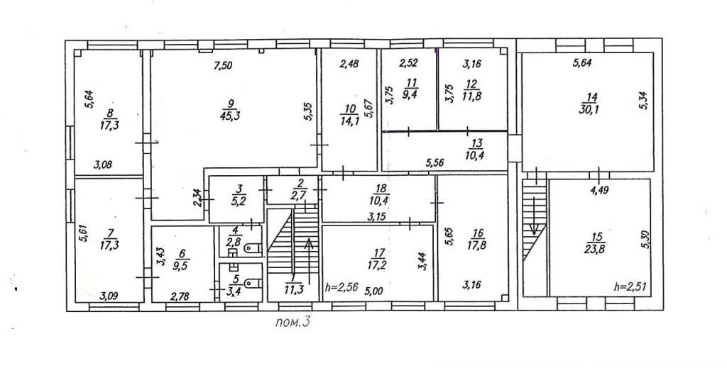
Площадь541 м²
Этажность2
КлассC
Отчёт о привлекательности объектаУзнайте, насколько помещение и район подходят для вашего бизнеса
Что входит в отчёт
  • Охват населения
  • Пешеходный трафик
  • Автомобильный трафик
  • Средний бюджет семьи по району
  • Арендные ставки рядом
  • Точки притяжения
  • Конкуренты в радиусе 1 км
  • Рекомендации по выбору места для бизнеса
Прекрасная возможность иметь свой бизнес в собственном здании, расположенном по адресу: пер. Телевизорный, 9а В продаже двухэтажное отдельно стоящее здание 541 кв.м., расположенное на собственном земельном участке 6.8 соток. Свет- 30 киловатт Холодная вода городская Отопление-центральное Кабинетная система, состояние дополнительных вложений не требует. Годовое обслуживание совсем небольшое. Есть парковочные места. Рассмотрим Ваши предложения по стоимости и по бартеру.
lock

Войдите или зарегистрируйтесь
для просмотра информации

Просматривайте условия сделки и всю информацию об объекте
Сохраняйте фильтры в поиске и не вводите заново
Доступ к избранному с любого устройства
Неограниченное добавление в избранное
Позвоните автору
Вам ответят на все вопросы
Остались вопросы по объявлению?
Позвоните владельцу объявления и уточните необходимую информацию.
  • Инфраструктура
  • Похожие рядом
Центральное отопление
Помощь надёжных риелторов
Риелтор партнёр Циан поможет купить или продать любую недвижимость
43 000 000 ₽
578 764 $
485 607
Цена за метр
79 483 ₽
Налог
НДС включен: 7 754 098 ₽
Агентство недвижимости
Документы проверены