Мы используем куки-файлы. Соглашение об использовании
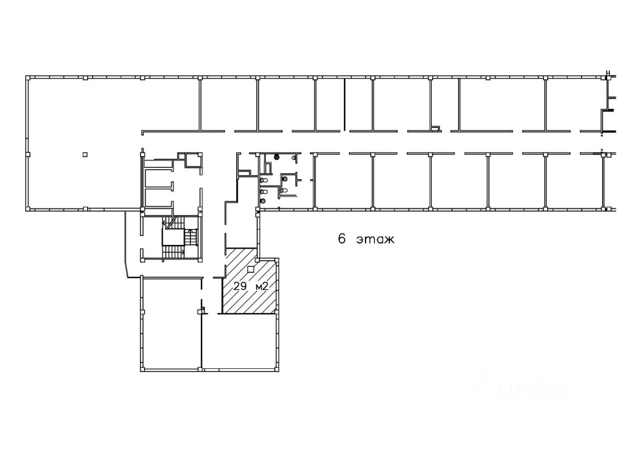
Площадь29 м²
Этаж6 из 11
ПомещениеСвободно
КлассA
Отчёт о привлекательности объектаУзнайте, насколько помещение и район подходят для вашего бизнеса
Что входит в отчёт
  • Охват населения
  • Пешеходный трафик
  • Автомобильный трафик
  • Средний бюджет семьи по району
  • Арендные ставки рядом
  • Точки притяжения
  • Конкуренты в радиусе 1 км
  • Рекомендации по выбору места для бизнеса
Качественная отделка, полное отсутствие экологически вредных материалов и подвесных потолков, компьютерная сеть с шкафом телекоммуникационным, кондиционирование.
lock

Войдите или зарегистрируйтесь
для просмотра информации

Просматривайте условия сделки и всю информацию об объекте
Сохраняйте фильтры в поиске и не вводите заново
Доступ к избранному с любого устройства
Неограниченное добавление в избранное
Позвоните автору
Вам ответят на все вопросы
Остались вопросы по объявлению?
Позвоните владельцу объявления и уточните необходимую информацию.
  • Инфраструктура
  • Похожие рядом
Помощь надёжных риелторов
Риелтор партнёр Циан поможет купить или продать любую недвижимость
СобственникID 127748183
    40 600 ₽/мес.

    Прямая аренда (от года), предоплата за 1 месяц

    534 $/мес.
    453 /мес.
    Цена за метр
    16 800 ₽ в год
    Налог
    НДС включен: 7 308 ₽
    Комиссия
    нет
    Коммунальные платежи
    включены
    Эксплуатационные расходы
    не включены
    СобственникID 127748183