Мы используем куки-файлы. Соглашение об использовании
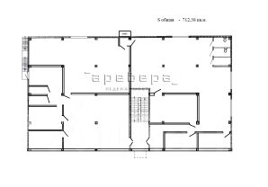
Помещение свободного назначения, 712,38 м²

Сдается помещение свободного назначения, 712,38 м²

Площадь712,38 м²
Этаж2 из 2
Отчёт о привлекательности объектаУзнайте, насколько помещение и район подходят для вашего бизнеса
Что входит в отчёт
  • Охват населения
  • Пешеходный трафик
  • Автомобильный трафик
  • Средний бюджет семьи по району
  • Арендные ставки рядом
  • Точки притяжения
  • Конкуренты в радиусе 1 км
  • Рекомендации по выбору места для бизнеса
Предлагаем снять в аренду универсальное нежилое помещение, расположенное по адресу: г. Красноярск, пр. Металлургов, 2у. Характеристики помещения: • помещение занимает весь второй этаж здания (на первом этаже размещен автосалон); • предусмотрены два входа: центральный с первого этажа и запасной с торца здания; • оборудован наружный (с улицы) лифт грузоподъемностью 500 кг; • планировка колонного типа, есть возможность организации пространства с учетом своих потребностей; • высота потолков — 4,5 м; • витражные окна; • полы — керамогранит; • централизованные коммуникации Территория здания огорожена по периметру. Хорошие подъездные пути. Удобный выезд в любую точку города и за его пределы. Рядом расположены остановки общественного транспорта. Условия аренды: отдельно оплачиваются коммунальные платежи и эксплуатационные расходы. Есть возможность арендовать часть помещения. Арендатор услуги агентства недвижимости не оплачивает.
lock

Войдите или зарегистрируйтесь
для просмотра информации

Просматривайте условия сделки и всю информацию об объекте
Сохраняйте фильтры в поиске и не вводите заново
Доступ к избранному с любого устройства
Неограниченное добавление в избранное
Позвоните автору
Вам ответят на все вопросы
Остались вопросы по объявлению?
Позвоните владельцу объявления и уточните необходимую информацию.
  • Инфраструктура
  • Похожие рядом
  • Тип зданияОтдельно стоящее здание
  • Общая площадь712,38 м²
Естественная вентиляция
Местное кондиционирование
Центральное отопление
Сигнализация
Помощь надёжных риелторов
Риелтор партнёр Циан поможет купить или продать любую недвижимость
641 142 ₽/мес.

Прямая аренда (от года), минимальный срок аренды 11 месяцев, доступны арендные каникулы, обеспечительный платёж 641142 ₽, предоплата за 1 месяц

8 584 $/мес.
7 320 /мес.
Цена за метр
10 800 ₽ в год
Налог
УСН
Комиссия
нет
Коммунальные платежи
не включены
Эксплуатационные расходы
не включены
Агентство недвижимости
Документы проверены