134 357 ₽/м²
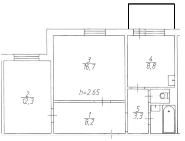
ПРОДАЕТСЯ 2-Х КОМНАТНАЯ КВАРТИРА!!! в кирпичном доме Октябрьского района предлагает комфортное проживание благодаря удачному расположению и продуманной планировке. Объект не является угловым, что гарантирует сохранение тепла в холодный период. Планировка функциональна, санузел совмещенный, а большая часть мебели остается новому владельцу. Жилье находится в развитом районе с полным набором социальной и бытовой инфраструктуры: в шаговой доступности расположены магазины, кафе, автобусные остановки, школа, детские сады и больница БСМП. Рядом находится парк, что создает благоприятную экологическую обстановку. Перспективная транспортная доступность усиливается за счет скорого открытия станции метрополитена. Квартира обладает высоким инвестиционным потенциалом и идеально подходит для сдачи в аренду благодаря близости к крупным учебным заведениям, включая Аграрный университет и Сибирский Федеральный Университет. Организуется просмотр в удобное время..РЕАЛЬНОМУ ПОКУПАТЕЛЮ ТОРГ Дополнительно оплачивается комиссия с покупателя. Комиссия на покупку данного типа недвижимости: - при стоимости объекта недвижимости до 8 000 000 рублей составляет 20 000 рублей + 2% от стоимости объекта недвижимости, но не менее 50 000 рублей при работе со специалистом по недвижимости; - при стоимости объекта недвижимости от 8 000 000 рублей составляет 2% от стоимости объекта недвижимости при работе со специалистом по недвижимости; - при стоимости объекта недвижимости до 8 000 000 рублей составляет 30 000 рублей + 2% от стоимости объекта недвижимости, но не менее 50 000 рублей при работе с экспертом по недвижимости; - при стоимости объекта недвижимости от 8 000 000 рублей составляет 10 000 рублей + 2% от стоимости объекта недвижимости при работе с экспертом по недвижимости; Сделки с агентствами по недвижимости происходят на основании "Соглашения о совместной сделке". Код пользователя: 160628 Номер в базе: 10430673





























