


122 159 ₽/м²
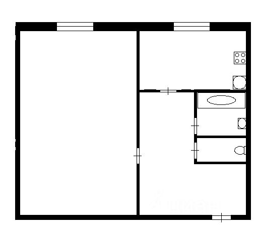
Продается 1-к квартира востребованной планировки "ленинградка" в микрорайоне Первомайский. Квартира в жилом состоянии, сделан косметический ремонт. Натяжные потолки, на полах - линолеум. Наличие в жилой комнате окна и балконного блока позволило переоборудовать ее в две изолированные комнаты меньшей площади. Санузел совмещен, в кафеле. В прихожей оборудован вместительный шкаф-купе. Балкон застеклен. Дом расположен в микрорайоне с прекрасно развитой инфраструктурой. В радиусе 400 м от дома - гимназия 4, средняя школа 46 , детские сады 109 и 265. В 10-15 минутах ходьбы от дома находятся торговые центры МАВИ и Ривер, отделение Сбербанка , плавательный клуб Сибирь, детская больница 5, популярный парк Каменка. Любой вид расчета. Один взрослый собственник. Полное юридическое сопровождение сделки. Звоните организую показ в любое время по договоренности. Дополнительно оплачивается комиссия с покупателя. Комиссия на покупку данного типа недвижимости: - при стоимости объекта недвижимости до 8 000 000 рублей составляет 20 000 рублей + 2% от стоимости объекта недвижимости, но не менее 50 000 рублей при работе со специалистом по недвижимости; - при стоимости объекта недвижимости от 8 000 000 рублей составляет 2% от стоимости объекта недвижимости при работе со специалистом по недвижимости; - при стоимости объекта недвижимости до 8 000 000 рублей составляет 30 000 рублей + 2% от стоимости объекта недвижимости, но не менее 50 000 рублей при работе с экспертом по недвижимости; - при стоимости объекта недвижимости от 8 000 000 рублей составляет 10 000 рублей + 2% от стоимости объекта недвижимости при работе с экспертом по недвижимости; Сделки с агентствами по недвижимости происходят на основании "Соглашения о совместной сделке". Код пользователя: 12077 Номер в базе: 6229818 1-комнатной квартиры в ипотеку в районе Кировский в городе Красноярск.
























































































